200 Square Meter Center Line House Plan AutoCAD Drawing Download DWG FIle
Description
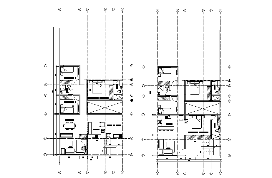
10X20 meter plot size for residence house ground floor and first-floor plan with furniture layout design. there 3 BHK and 4 BHK house centre line plan with all dimension detail. download 200 square meter plot house project drawing dwg file. Thank you for downloading the Autocad file and other CAD program files from our website
Uploaded by:

