160 Square Meter House Building Sectional Elevation Design Drawing DWG File
Description
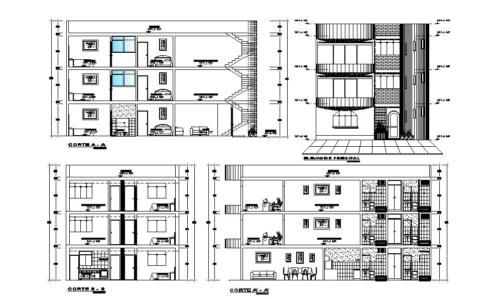
The residence house building section drawing and elevation design that shows G+2 storey floor level building model design. the total plot size is 16X10 meters in length and breadth of the building. Thank you for downloading the Autocad files and other CAD program files from our website.
Uploaded by:

