Hotel Project Ground Floor And First Floor plan AutoCAD Drawing Download DWG File
Description
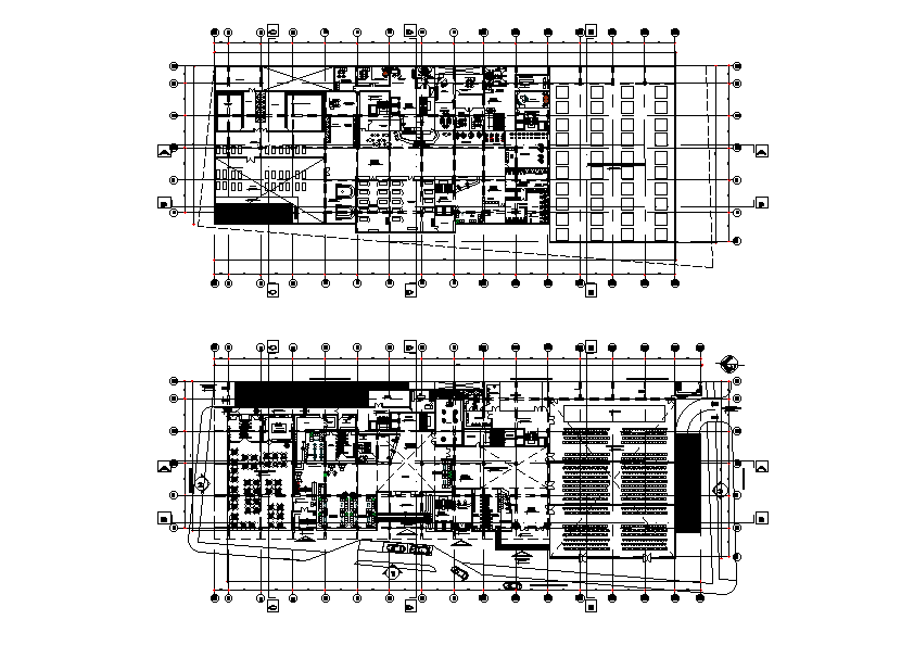
the architecture hotel ground floor plan and first-floor layout plan drawing which includes admin office, auditory machinery floor, graphic design room, massage room, restaurant, coffee bar, and toilet detail. Thank you for downloading the Autocad drawing file and other CAD program files from our cadbull website.
Uploaded by:

