Typical Hotel Layout Plan And Section Drawing Download DWG File
Description
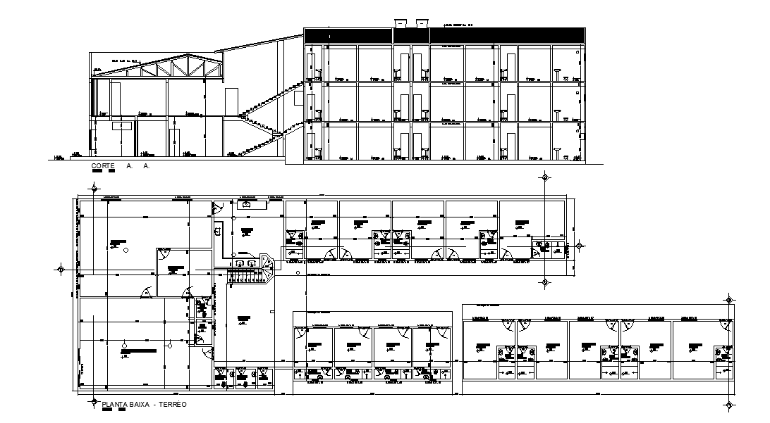
The hotel project AutoCAD drawing that shows a typical floor plan and G+2 storey floor level building section view all dimension measurement detail. the floor plan has bedrooms with an attached toilet, service reception counter and laundry room detail. Thank you for downloading the AutoCAD drawing file and other CAD program files from our website.
Uploaded by:

