Architecture House Building Elevation Design Download DWG File
Description
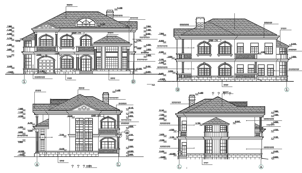
The residence architecture house building all side elevation design that shows G+1 storey floor level building model design,, arch-shaped window glass, column, truss span clay roof and chimney detail in dwg file. Thank you for downloading the AutoCAD drawing file and other CAD program files from our website.
Uploaded by:

