G+4 Storey Apartment Building Sectional Elevation Drawing Download DWG File
Description
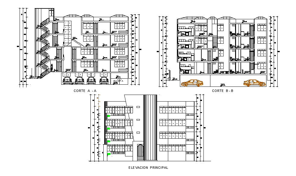
The typical apartment building sectional elevation design AutoCAD drawing that shows G+4 storey floor level building model design, standard staircase, door window marking and vehicle parking on ground floor detail dwg file. Thank you for downloading the AutoCAD drawing file and other CAD program files from our website.
Uploaded by:

