14X17 Meter House Ground Floor Plan And First Floor Plan AutoCAD Drawing Download DWG File
Description
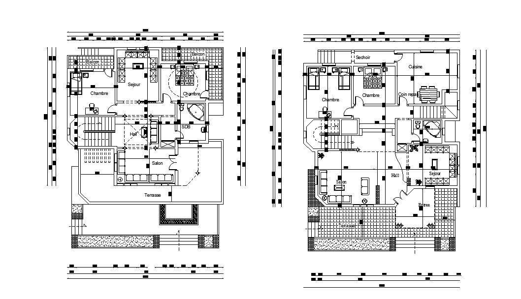
The architecture house ground floor plan and first-floor plan with furniture layout CAD drawing which includes drawing room, living area, kitchen, 4 bedrooms with master bathroom and dress. the addition drawing such as all furniture design with dimension detail. download 14X17 meter plot size for AutoCAD house plan design and select which is more suitable at your ideal house plan design. Thank you for downloading the AutoCAD drawing file and other CAD program files from our website.
Uploaded by:

