AutoCAD House Building Front Elevation Design Download DWG File
Description
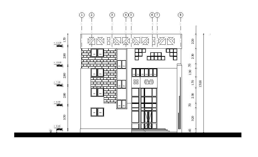
The architecture house building front elevation design that shows main entrance gate, brick wall design, window marking, and the total 15-meter height of house building with centre line detail dwg file. Thank you for downloading the AutoCAD drawing file and other CAD program files from our website.
Uploaded by:

