G+7 Storey Floor Level Building Sectional Elevation Design Download DWG File
Description
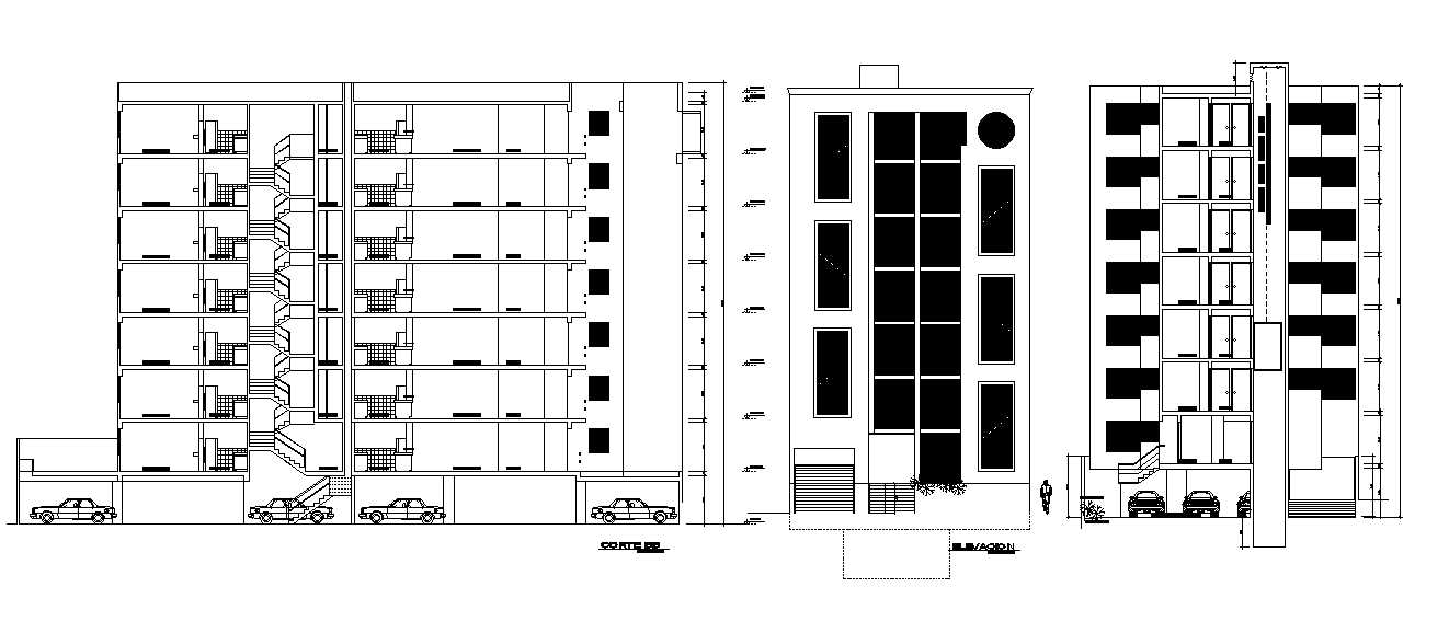
The architecture residence apartment building sectional elevation design CAD drawing which includes vehicle parking on the ground floor, standard staircase, glass door window marking, and all dimension detail in dwg file. Thank you for downloading the AutoCAD drawing file and other CAD program files from our website.
Uploaded by:

