6X15 Meter House Layout Plan Drawing Download DWG File
Description
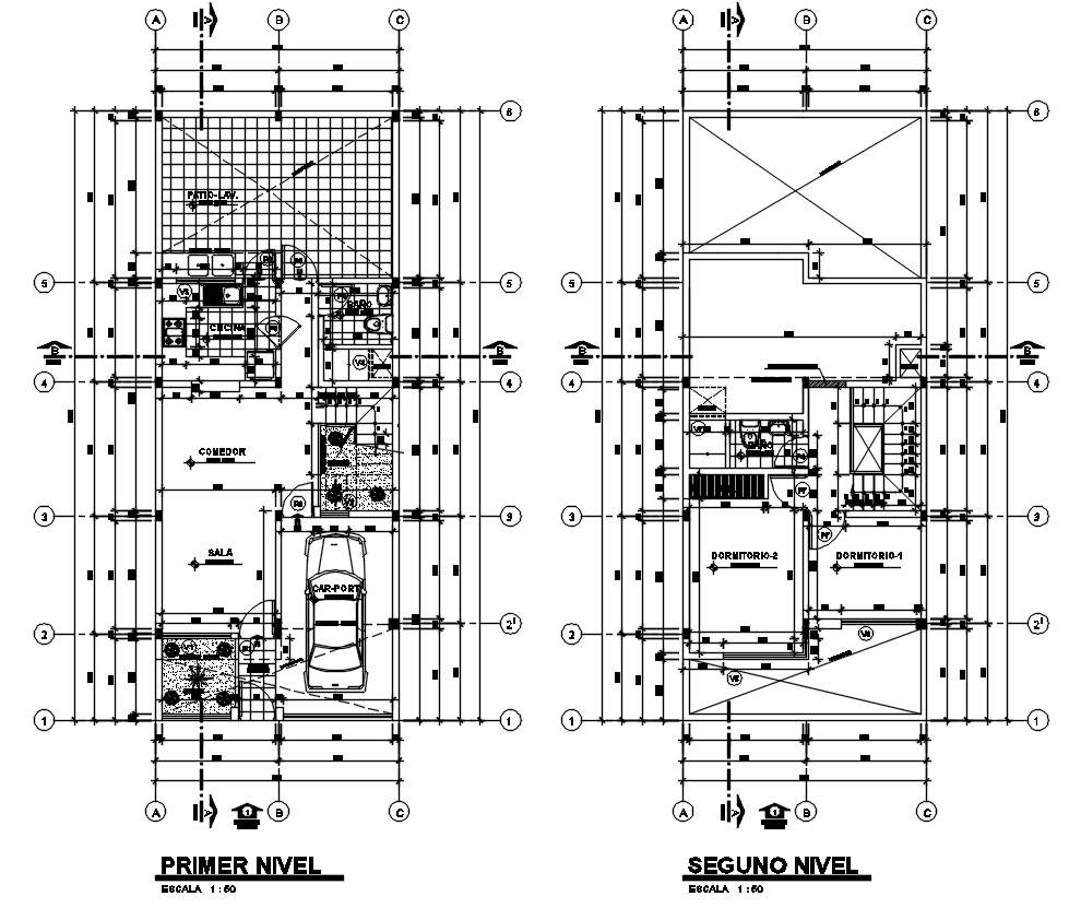
6X15 meter plot size for residence house ground floor and first-floor plan with furniture layout drawing that shows bedrooms, kitchen, drawing room, dining area, living room, and inside staircase. the addition drawing such as furniture and column layout plan dwg file. Thanks for downloading the file and another CAD program from the cadbull.com website.
Uploaded by:

