Hospital Layout Plan Drawing Download DWG File
Description
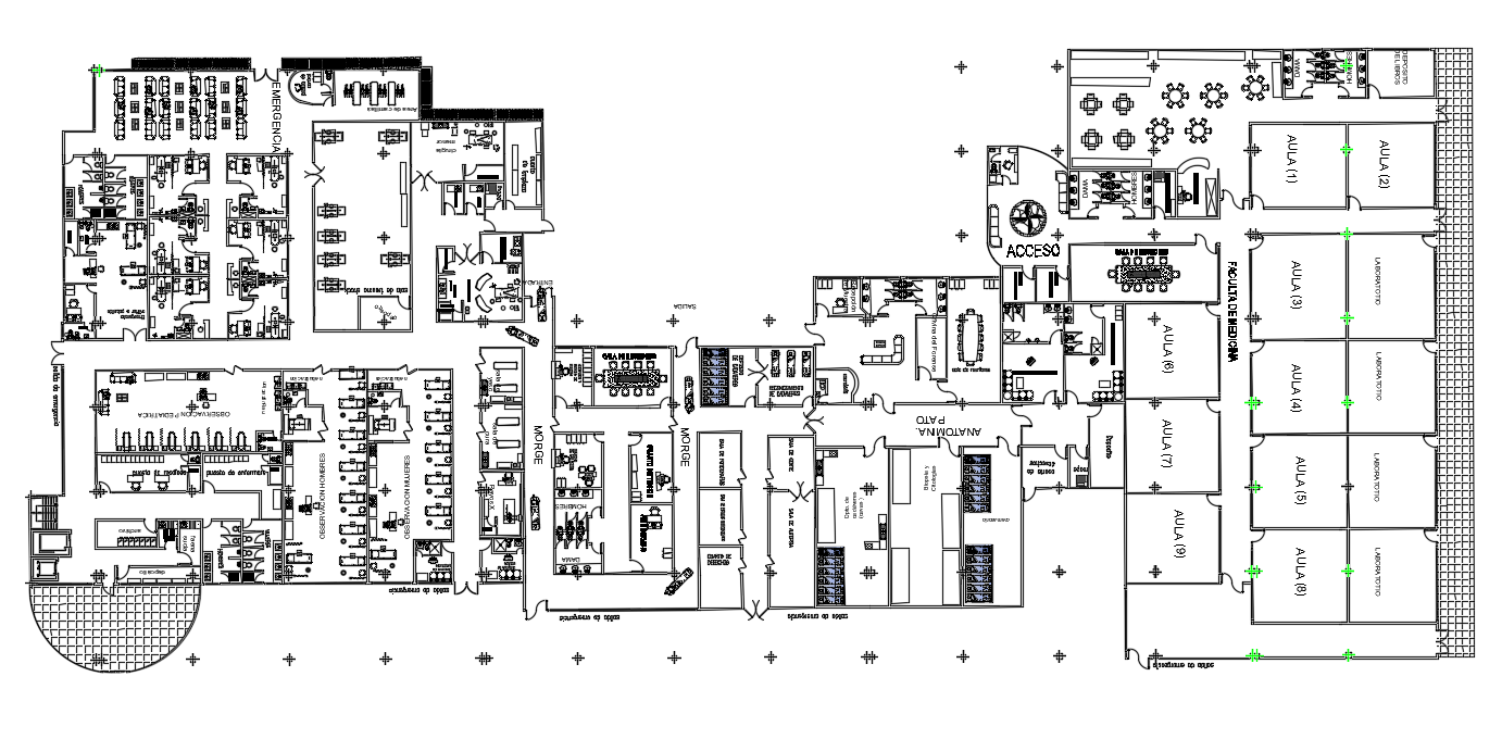
The hospital project CAD drawing shows the consulting room, waiting area, reception area, admit room, consultant room, general ward, wide passage, and toilet detail. also has all furniture layout Thanks for downloading the file and another CAD program from the cadbull.com website.
Uploaded by:

