2D School Front Elevation And Section Drawing Download DWG File
Description
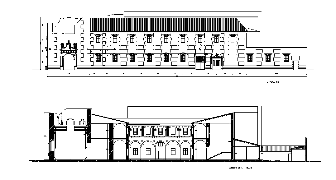
The architecture school building front elevation design and section drawing that shows G+1 storey floor building structure design, door window marking, and truss span roof detail dwg file. Thanks for downloading the file and another CAD program from the cadbull.com website.
Uploaded by:

