9X24 Meter Apartment House Plan CAD Drawing Download DWG File
Description
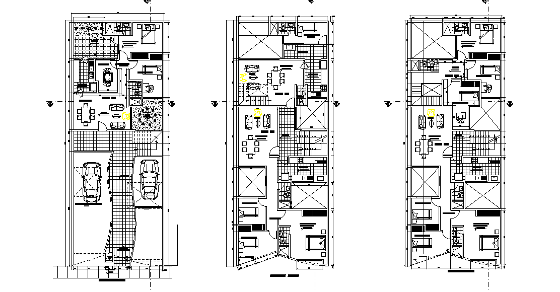
9X24 meter plot size for apartment cluster plan CAD drawing that shows 1 BHK, 2 BHK, and 3 BHK house plan with wall furniture layout design,2 big car parking space accommodation with all dimension detail dwg file. Thanks for downloading the file and another CAD program from the cadbull.com
Uploaded by:
