Hospital Layout Plan AutoCAD Drawing Download DWG File
Description
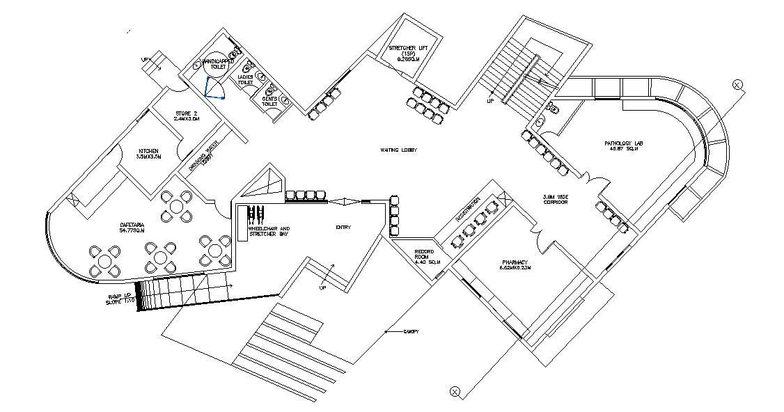
the hospital layout plan AutoCAD drawing that shows wheelchair and stretcher bay, pharmacy, pathology lab, waiting lobby, stretcher lift, cafeteria, kitchen, consult room, and toilet with all dimension measurement detail dwg file. Thanks for downloading the file and another CAD program from the cadbull.com website.
Uploaded by:
