Multi Family House Building Section Drawing Download DWG File
Description
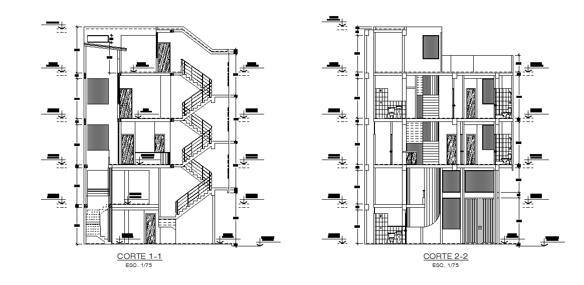
the multifamily house building sectional elevation CAD drawing thats shows G+2 storey floor level building structure design, staircase with railing view, door and window marking with all dimension detail. this is 6 bedrooms house project detail dwg file. Thanks for downloading the file and another CAD program from the cadbull.com website.
Uploaded by:

