2D House Building Section Drawing Download DWG File
Description
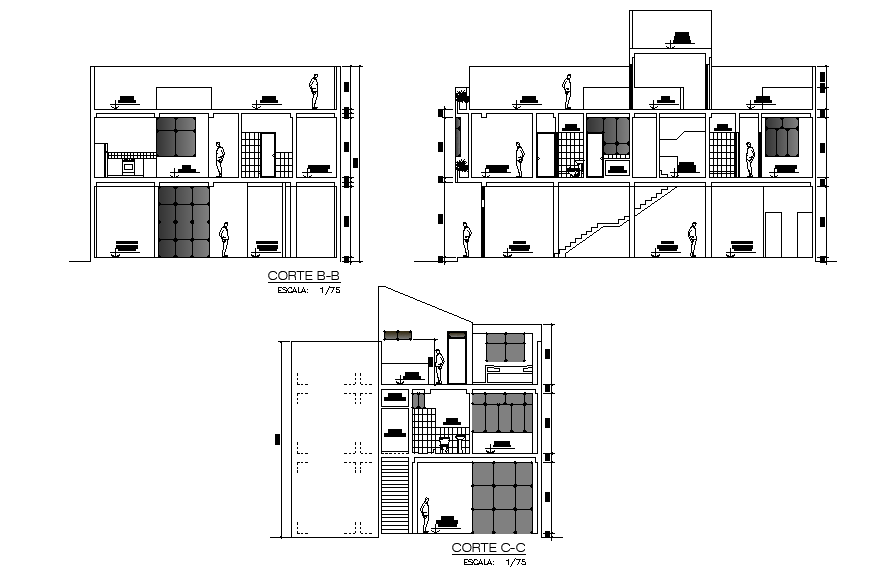
The architecture residence house building section drawing shows G+1 storey floor level building model design, this is 5 bedrooms house project with all dimension detail dwg file. Thanks for downloading the file and another CAD program from the cadbull.com website.
Uploaded by:

