Car Parking House Section Drawing Download DWG File
Description
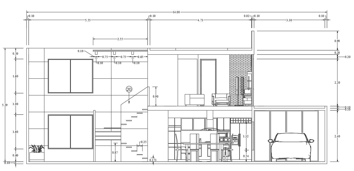
The residence car parking house building section drawing which includes modular kitchen, inside staircase, bedrooms and the total 14 meter breadth detail dwg file. Thank you for downloading the AutoCAD file and other CAD program files from our website.
Uploaded by:

