62'X98' Ground Floor House Plan Drawing DWG File
Description
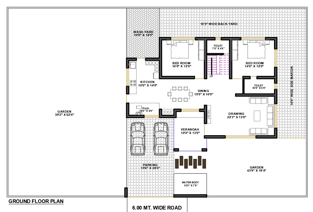
The residence house ground floor plan 62X98 feet plot size space planning CAD drawing which includes 14'X12' two bedrooms, drawing room, dining area, kitchen, verandah, garden, and 2 big car parking space accommodation detail dwg file. Thank you for downloading the Autocad files and other CAD program files from our website.
Uploaded by:

