Wall Panel Section CAD Drawing Download Free DWG File
Description
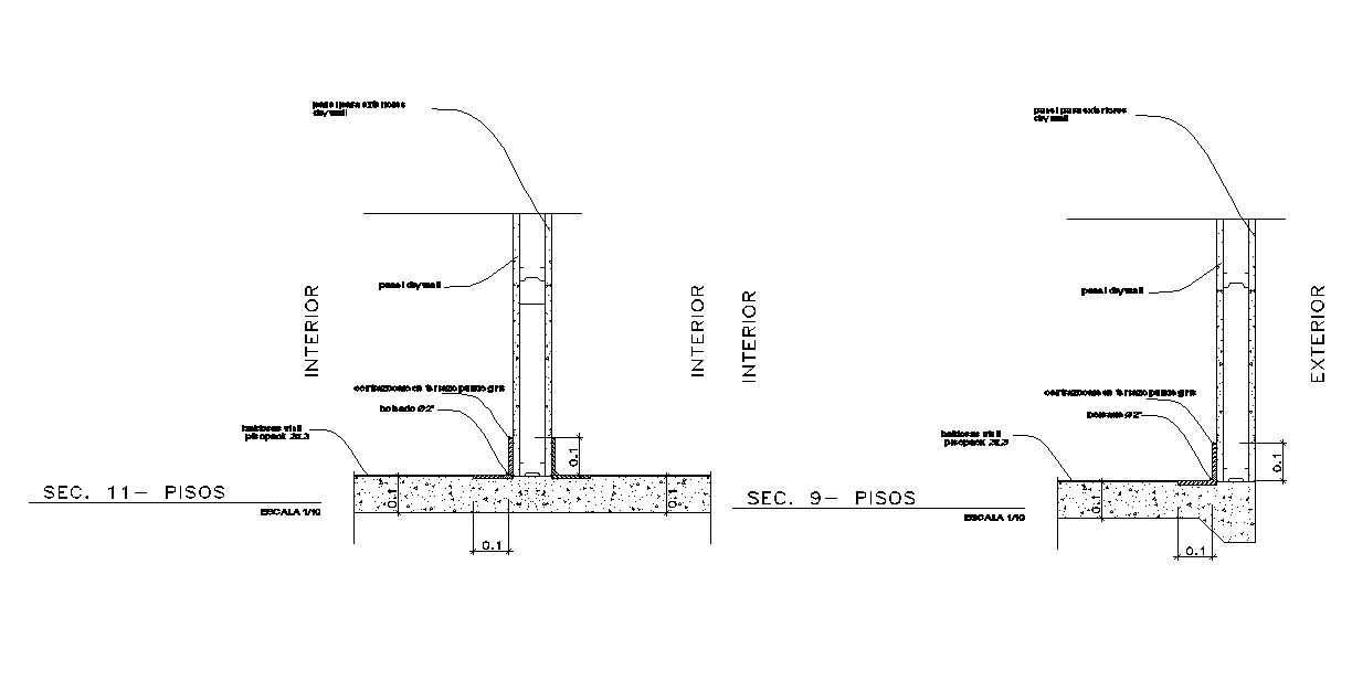
The wall panel section CAD drawing which consist vinyl floor pack .3x.3 tiles, dry wall panel, gray polished terrazzo countertop, and dry wall outdoor panel detail dwg file. Thank you for downloading the Autocad drawing file and other CAD program files from our website.
Uploaded by:

