Door And Window CAD drawing Free Download DWG File
Description
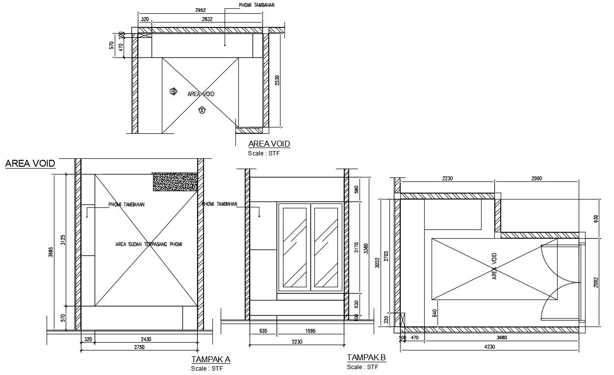
The AutoCAD drawing drawing given the detail of door and window elevation and frame with dimension detail. its made by wooden frame and glass detail in dwg file. Thank you for downloading the AutoCAD drawing file and other CAD program files from our website.
Uploaded by:

