2D CAD House Building Section CAD Drawing Download DWG File
Description
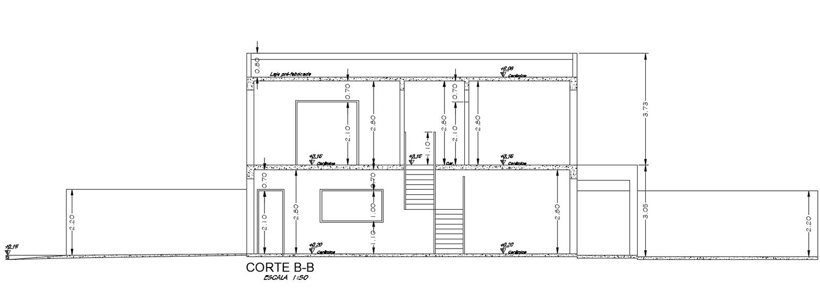
The residence house building section CAD drawing that shows RCC slab, staircase, wall section, inside staircase, door window marking and 2 storey floor level building model design with 6.7 meter height, 2.2 meter compound wall detail dwg file. Thank you for downloading the AutoCAD drawing file and other CAD program files from our website.
Uploaded by:

