Training Lab Layout Plan AutoCAD Drawing Download DWG File
Description
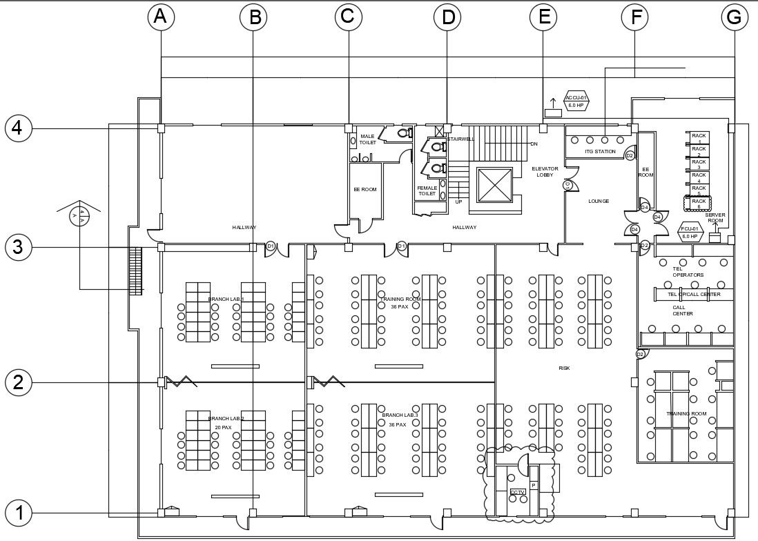
The training lab layout plan AutoCAD drawing which includes lab 1, lab 2, lab 3, training room, hall, lounge, server room, operator room, toilet and staircase detail in dwg file. Thank you for downloading the AutoCAD drawing file and other CAD program files from our website.
Uploaded by:

