RCC Column Foundation Section And Top View CAD Drawing Download DWG File
Description
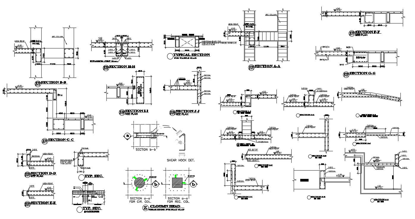
The RCC column foundation Section CAD drawing that shows plinth beam joint, RCC foundation spread sheet, and number of reinforcement detail. the total 320X400mm column footing section view of the foundation and column is given in dwg file. For more details download the AutoCAD drawing file. Thank you for downloading the AutoCAD drawing file and other CAD program files from our website.
Uploaded by:

