AutoCAD Restaurant Floor Plan AutoCAD drawing Download DWG File
Description
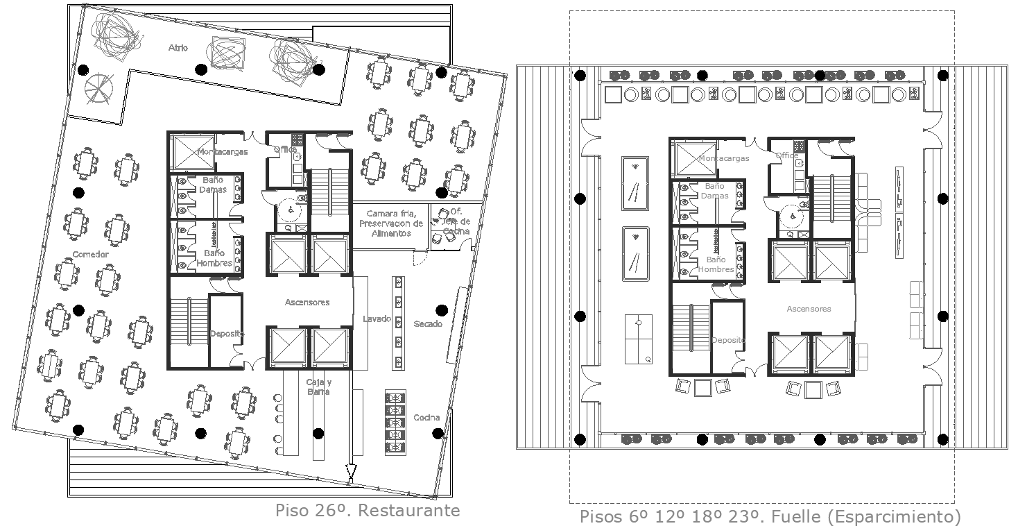
The restaurant floor plan AutoCAD drawing which consist dining area, kitchen, gent’s toilet, ladies toilet, counter bar, play zone, store room, and service area is available. For more details download the AutoCAD drawing file. Thank you for downloading the AutoCAD drawing file and other CAD program files from our website.
Uploaded by:

