21x12m hospital laboratory plan is given in this AutoCAD drawing model. Download now.
Description
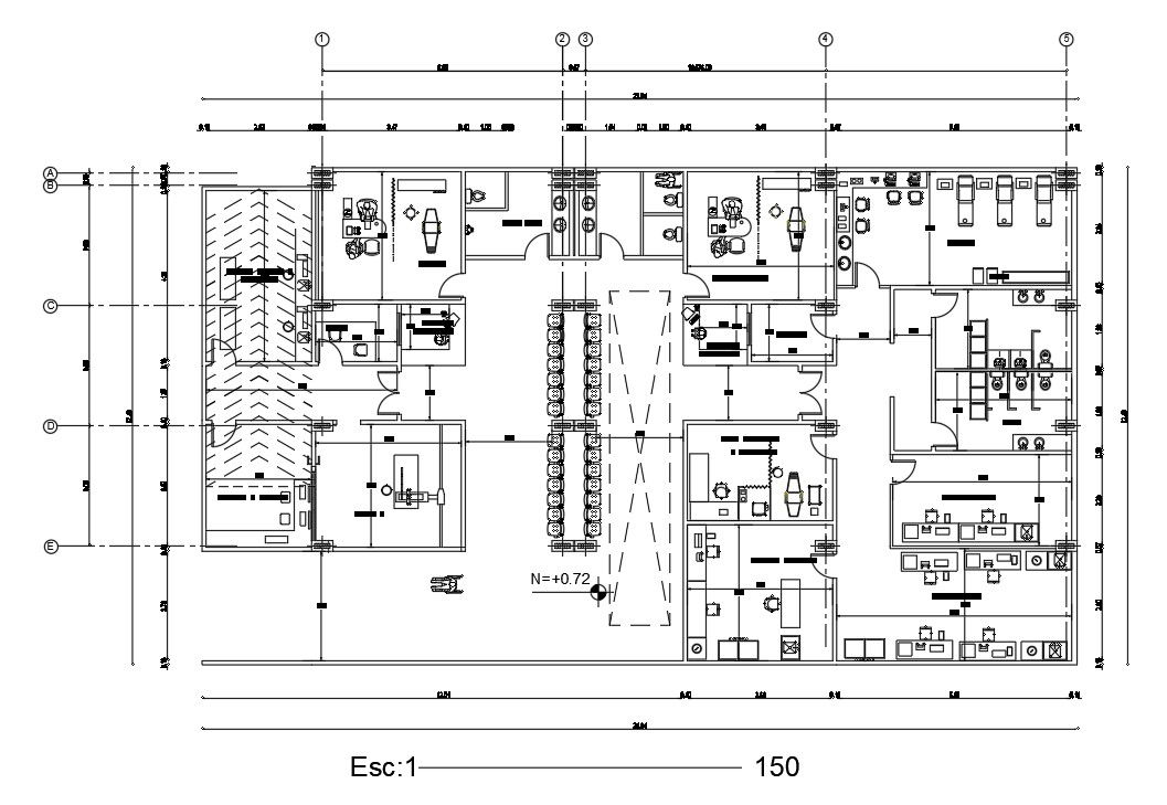
21x12m hospital laboratory plan is given in this AutoCAD drawing model. This plan is given on the second floor. Office room, waiting area, hematology, bacteriology, reception, gent’s toilet, ladies toilet, and control room are available. For more details download the AutoCAD drawing file. Thank you for downloading the AutoCAD drawing file and other CAD program files from our website.
Uploaded by:

