34x18m hospital plan is given in this AutoCAD drawing model. Download now.
Description
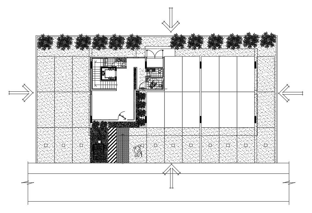
34x18m hospital plan is given in this AutoCAD drawing model. This is G+ 2 hospital building. In this plan, car parking, Admin office, Nurse Station, doctor consulting room, restroom, duty doctor restroom, water closet for male & female, reception, waiting area, pharmacy, car parking, emergency ward, and other details are mentioned in this drawing model. For more details download the Autocad drawing file. Thank you for downloading the Autocad drawing file and other CAD program files from our website.
Uploaded by:

