Toilet Plan And Section 2d Drawing Download DWG File
Description
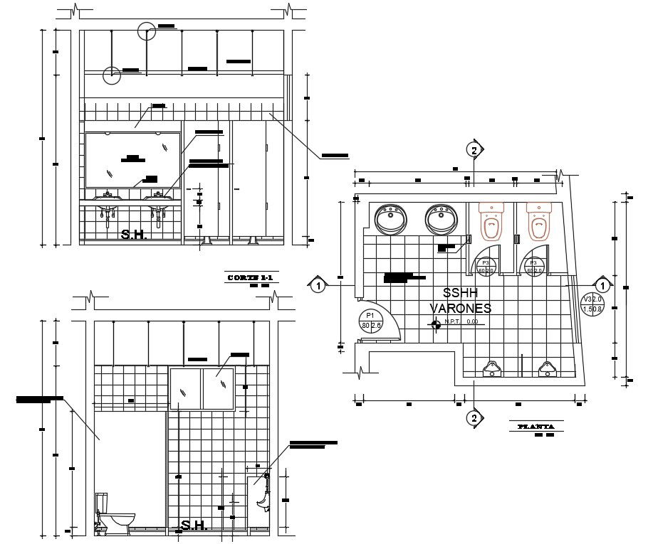
The Public toilet plan and section CAD drawing that shows wash area, toilet and urinal. also has granite rotated, shelves and 20mm plated plywood cabinet coated with white format, crystal mirror ø50cm fixed with finessing screw detail in dwg file. For more details download the Autocad file. Thank you for downloading the Autocad file and other CAD program files from our website.
Uploaded by:

