Office Floor Plan AutoCAD Drawing Download DWG File
Description
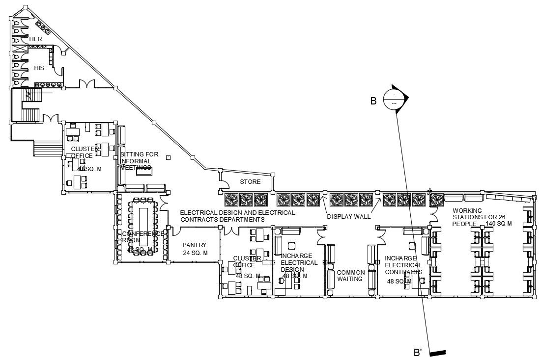
The architecture office floor plan CAD drawing that shows common waiting hall, working station, pantry, store room, cluster office, setting informal meeting, conference room, and toilet detail in dwg file. For more details download the Autocad file. Thank you for downloading the Autocad files and other CAD program files from our website.
Uploaded by:

