4 Storey Apartment Building Section Drawing DWG File
Description
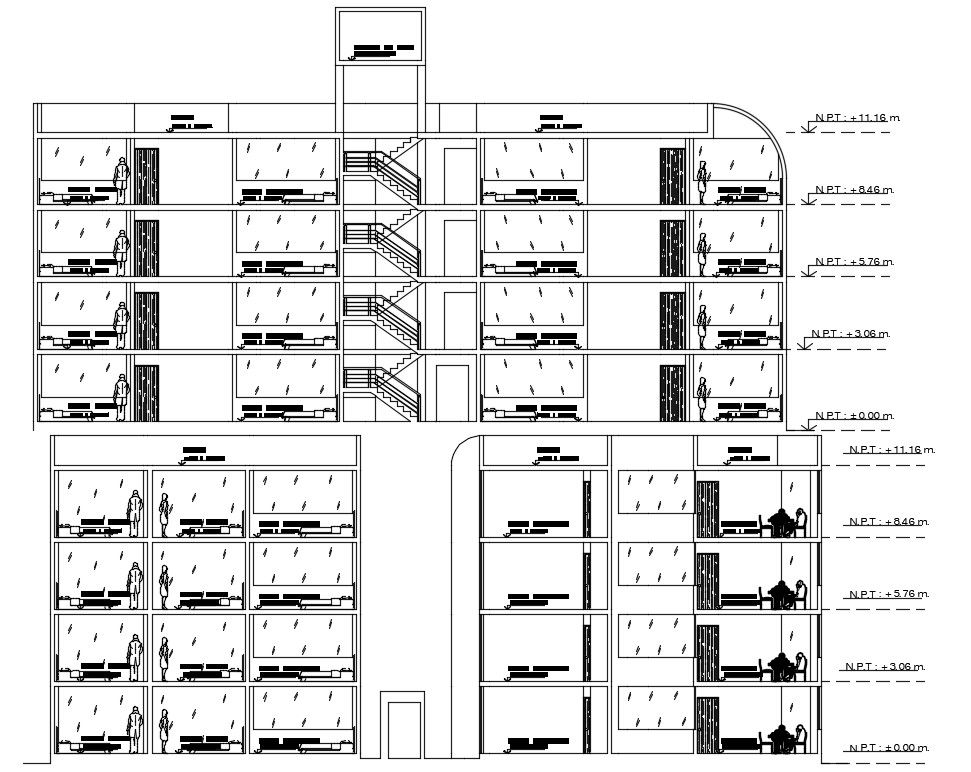
The architecture apartment building section CAD drawing that shows 4 storey floor level building model design which consist 3 bedrooms luxuries house, standard staircase view, RCC slab and all measurement dimension detail in dwg file. Thank you for downloading the AutoCAD drawing file and other CAD program files from our website.
Uploaded by:

