Architecture School Floor Plan AutoCAD Drawing Download DWG File
Description
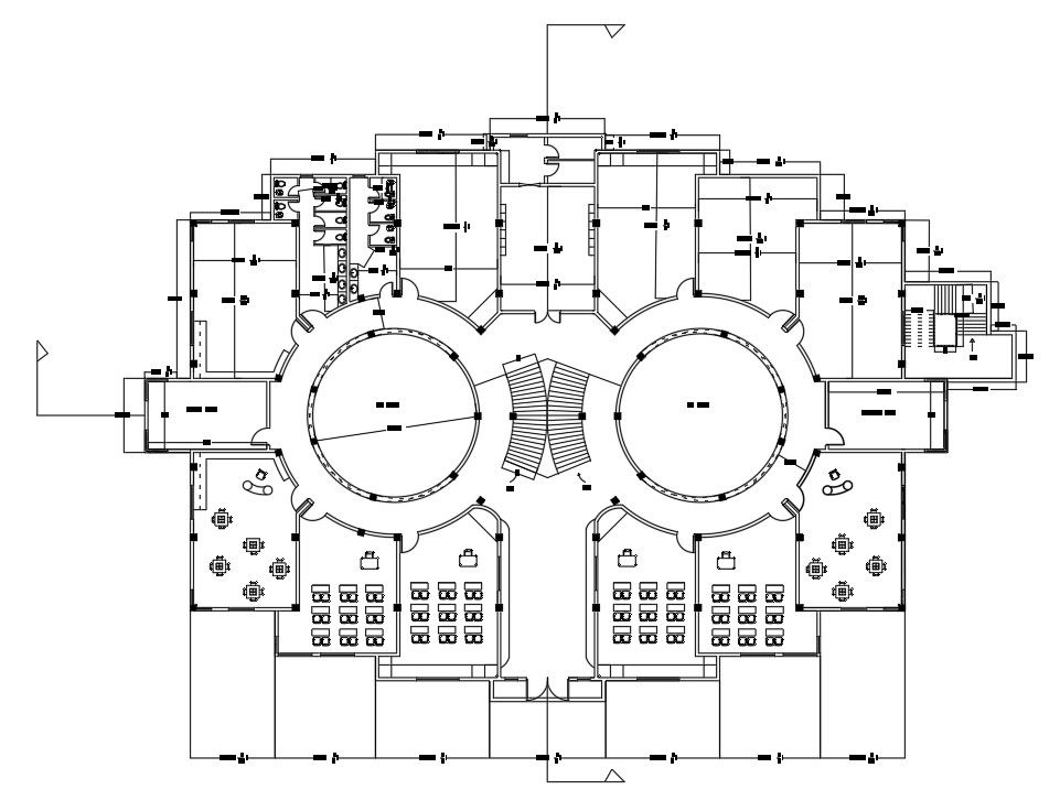
The architecture school building floor plan AutoCAD Drawing that shows class rooms with furniture, toilet, double height center, staircase, and door window marking detail in dwg file. Thank you for downloading the Autocad drawing file and other CAD program files.
Uploaded by:

