2 Bedrooms House Plan Drawing Download DWG File
Description
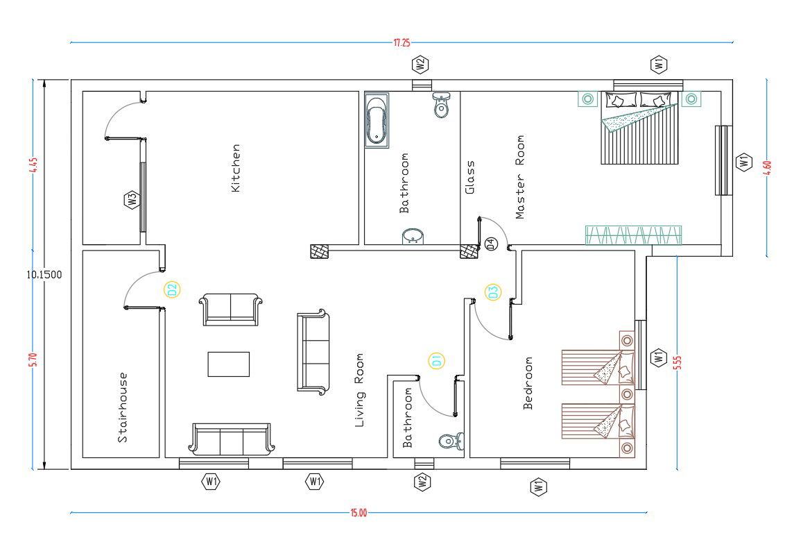
10X17 meter plot size of house ground floor plan AutoCAD drawing which consist 2 bedrooms, kitchen, living room, and number of door window marking detail in dwg file. also has furniture layout drawing download dwg file. Thank you so much for Downloading AutoCAD DWG 2d files from our website.
Uploaded by:
