Ware House Ground Floor Plan Drawing Download DWG File
Description
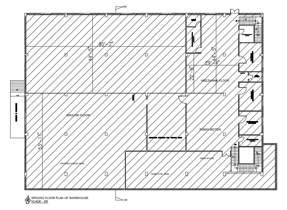
The ware house ground floor plan AutoCAD drawing includes godown, administration office, shop, storage room, working area, and main gate detail in dwg file. Thank you for downloading the Autocad drawing file and other CAD program files.
Uploaded by:

