25x45 Feet 3BHK Duplex House Design Layout Plan in AutoCAD DWG File
Description
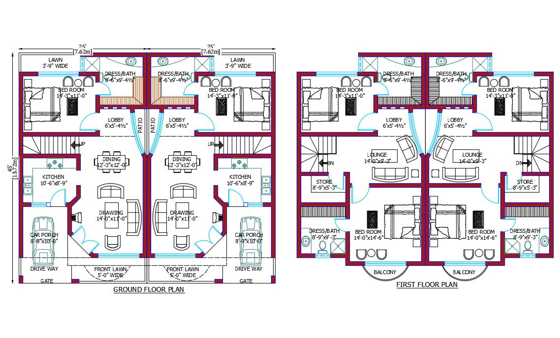
This DWG CAD file presents a 25x45 feet 3BHK duplex house plan designed for modern architectural needs. The layout includes a detailed floor arrangement with living, kitchen, and bedroom spaces, providing clarity for construction and design professionals. Ideal for architects, civil engineers, and planners working on residential housing projects, this file helps visualize space efficiency and structural functionality in duplex home layouts.
Uploaded by:

