House Staircase Plan And Section Drawing Free Download DWG
Description
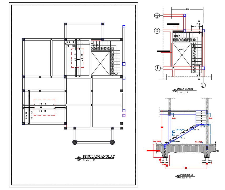
The residence house staircase plan and section CAD drawing that shows column footing foundation, and the respective dimensions of tread and riser for all the parallel steps same in the consecutive ground floor of a building. Thank you for downloading the Autocad drawing file and other CAD program files from our website.
Uploaded by:

