32'X22' House Ground Floor And First Floor Plan Download DWG File
Description
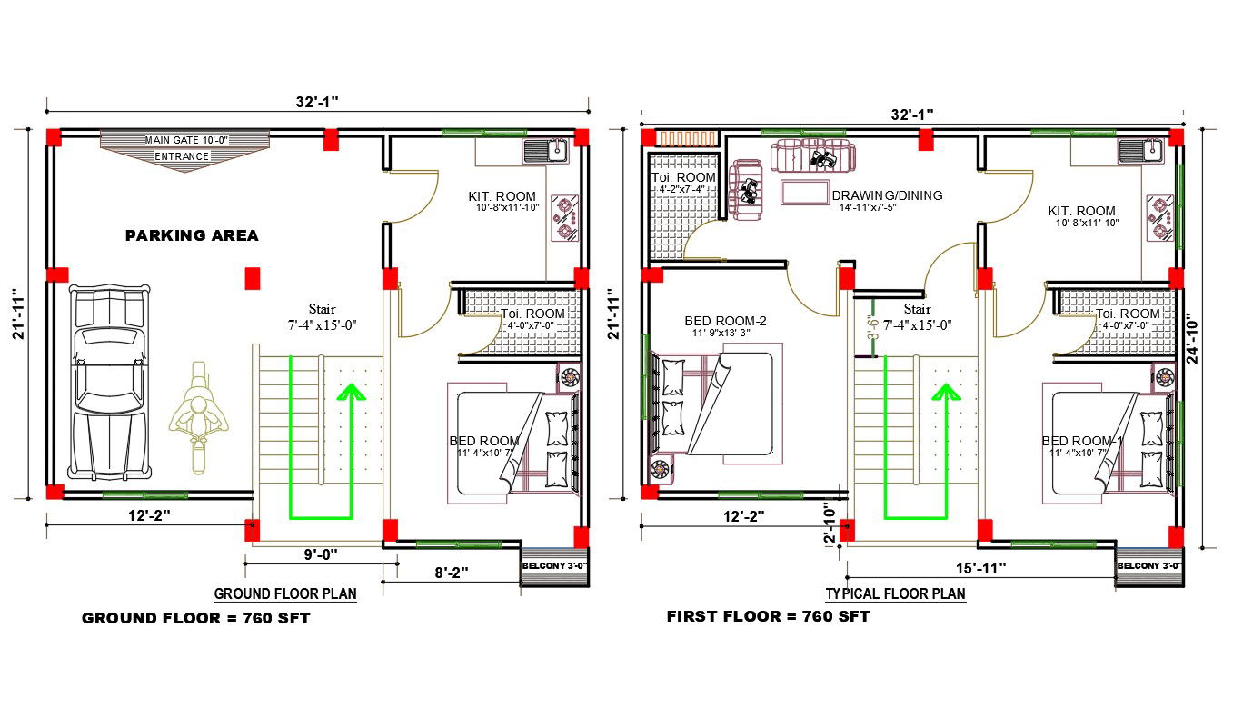
The architecture residence house ground floor and first floor plan AutoCAD drawing which consist column layout plan with furniture design. the ground floor has parking area, kitchen and master bedroom. the first floor plan includes 2 bedrooms, kitchen, drawing room and staircase with complete annotation and dimensions detail in feet and meter format for better understanding. download 2 storey house plan drawing in DWG file.
Uploaded by:

