Library Layout Plan AutoCAD Drawing Download DWG File
Description
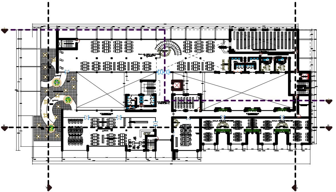
The architecture layout plan CAD drawing that shows seating area, reception area, admin office, auditorium hall, canteen, toilet, and lift with staircase detail in dwg file. Thank you for downloading world largest AutoCAD library drawing dwg file and other CAD program files from cadbull website.
Uploaded by:

