75X60 FT Modern House Layout Plan Drawing Download DWG File
Description
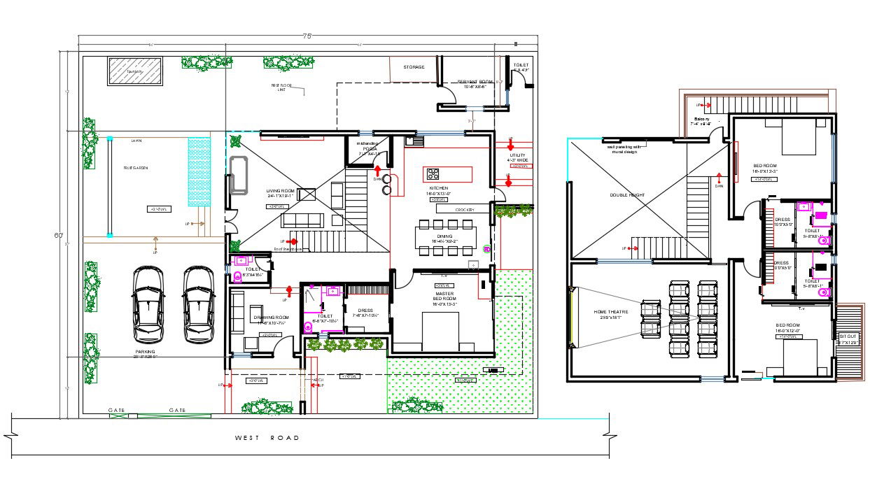
The modern house ground floor and first floor layout plan CAD drawing that shows 75'X60' plot size which consists 3 master bedrooms with an attached toilet, double height living room, drawing room, dining area, kitchen, home theater, front side lawn with fountain and 2 big car parking sapec in CAD drawing dwg file. Thank you for downloading the Autocad drawing file and other CAD program files from our website.
Uploaded by:

