Studio House Plan AutoCAD Drawing Download DWG File
Description
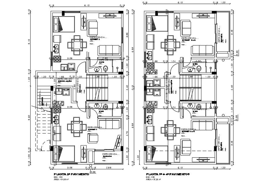
The studio house apartment layout plan AutoCAD drawing includes all furniture detail such as kitchen, double bed, living area sofa set, and dining table with all dimension detail. Thank you for downloading the AutoCAD drawing file and other CAD program files from our website.
Uploaded by:

