Administrative Office Floor Plan AutoCAD Drawing Download DWG File
Description
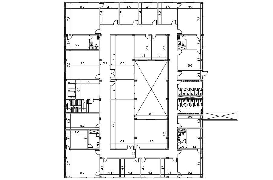
The administration office building floor plan CAD drawing shows open down, office desk, rooftop exit, office desk, multiple administrative office and toilet. also has has column layout plan with dimension detail in dwg file. Thank you for downloading the AutoCAD drawing file and other CAD program files from our website.
Uploaded by:

