Corporate Building Basement Parking Plan Drawing Download DWG File
Description
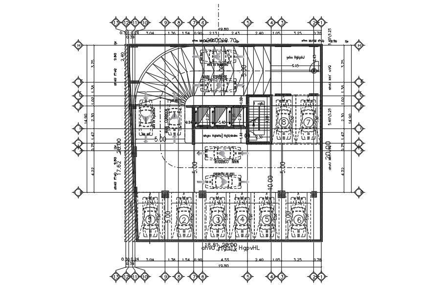
The corporate building basement parking layout plan CAD drawing includes parking lot, ramp way, staircase with lift elevator, and center line plan with dimension detail. Load factors are applied to the loads, and a member is selected that will have enough strength to resist the factored loads in dwg file. Thank you for downloading the AutoCAD drawing file and other CAD program files from our website.
Uploaded by:

