Construction Building Column Layout Plan Download Free DWG File
Description
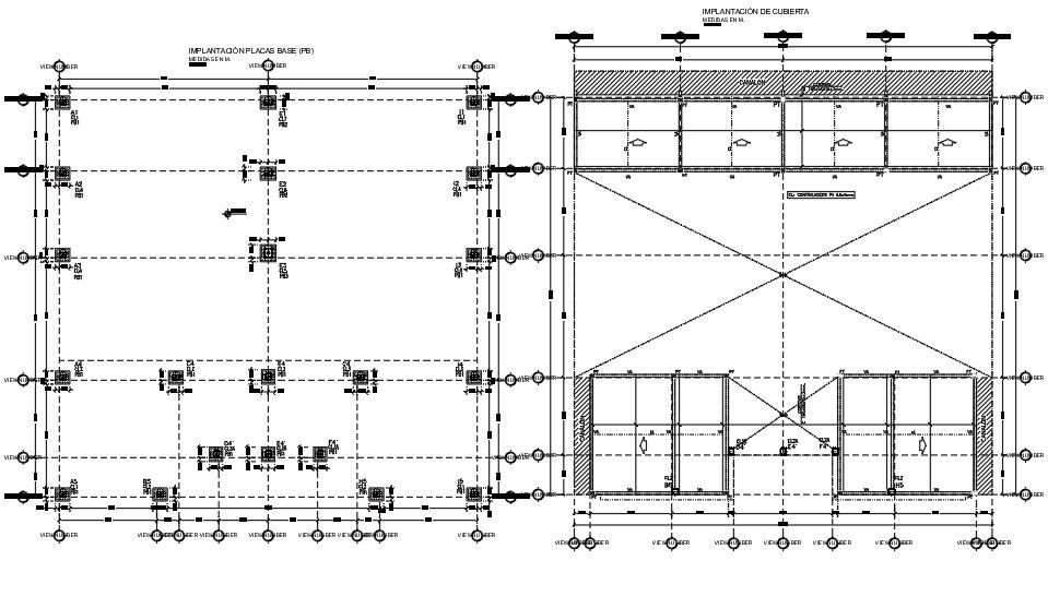
The construction building column layout plan AutoCAD drawing includes helically bound columns are also used for circular construction octagonal shapes of cross-sections with concrete detail. architects prefer circular columns in some specific situations for the functional construction requirement. Thank you for downloading the AutoCAD drawing file and other CAD program files from our website.
File Type:
DWG
File Size:
501 KB
Category::
Construction
Sub Category::
Concrete And Reinforced Concrete Details
type:
Free
Uploaded by:

