AutoCAD Clun House Layout Plan Drawing Download DWG File
Description
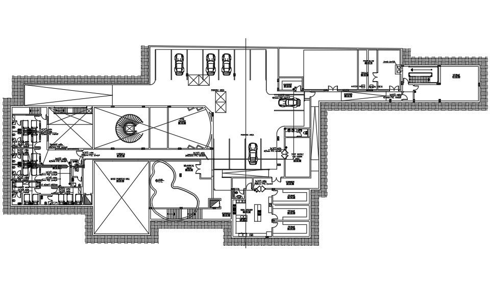
The architecture club house layout plan AutoCAD drawing includes car parking lot, bedrooms, swimming pool, dining area, multipurpose hall, administration office, and stair with lift elevator detail in dwg file. Thank you for downloading the AutoCAD drawing file and other CAD program files from our website.
Uploaded by:

