Bedrooms Floor Plan Hotel Project CAD Drawing
Description
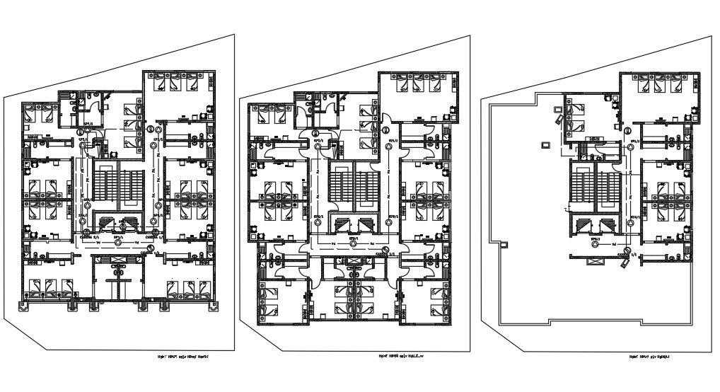
The architecture hotel building bedrooms floor plan AutoCAD drawing which consist 3 different floor with furniture layout, bedrooms with toilet, staircase, and lift elevator detail in dwg file. Thank you for downloading the AutoCAD drawing file and other CAD program files from our website.
Uploaded by:

