40X38 Feet House Layout Plan Drawing Download DWG File
Description
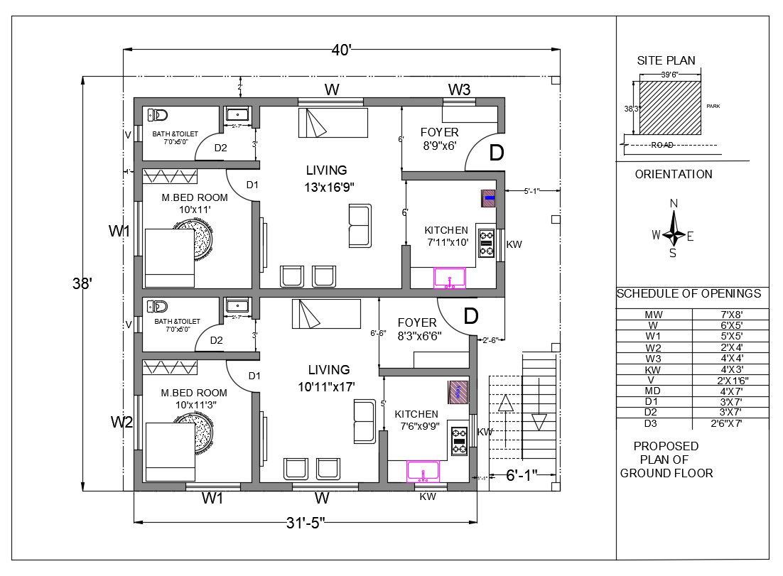
AutoCAD drawing of 40'X38' plot size house layout plan which consist 2 unit house with furniture design and dimension detail. the residence house plan includes bedroom, living room, kitchen, toilet and foyer area. download 1 bhk small house plan drawing dwg file. Thank you for downloading the AutoCAD drawing file and other CAD program files from our website.
Uploaded by:

