215 Sqft House Layout Plan Drawing DWG File
Description
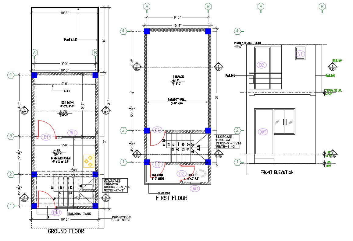
AutoCAD drawing small house layout plan shows 215 square feet plot size which consist ground floor and first floor plan with front elevation design. also has column layout and center line plan with all dimension detail in dwg file. Thank you for downloading the AutoCAD drawing file and other CAD program files from our website.
Uploaded by:

