Staircase Plan And Section Drawing Download DWG File
Description
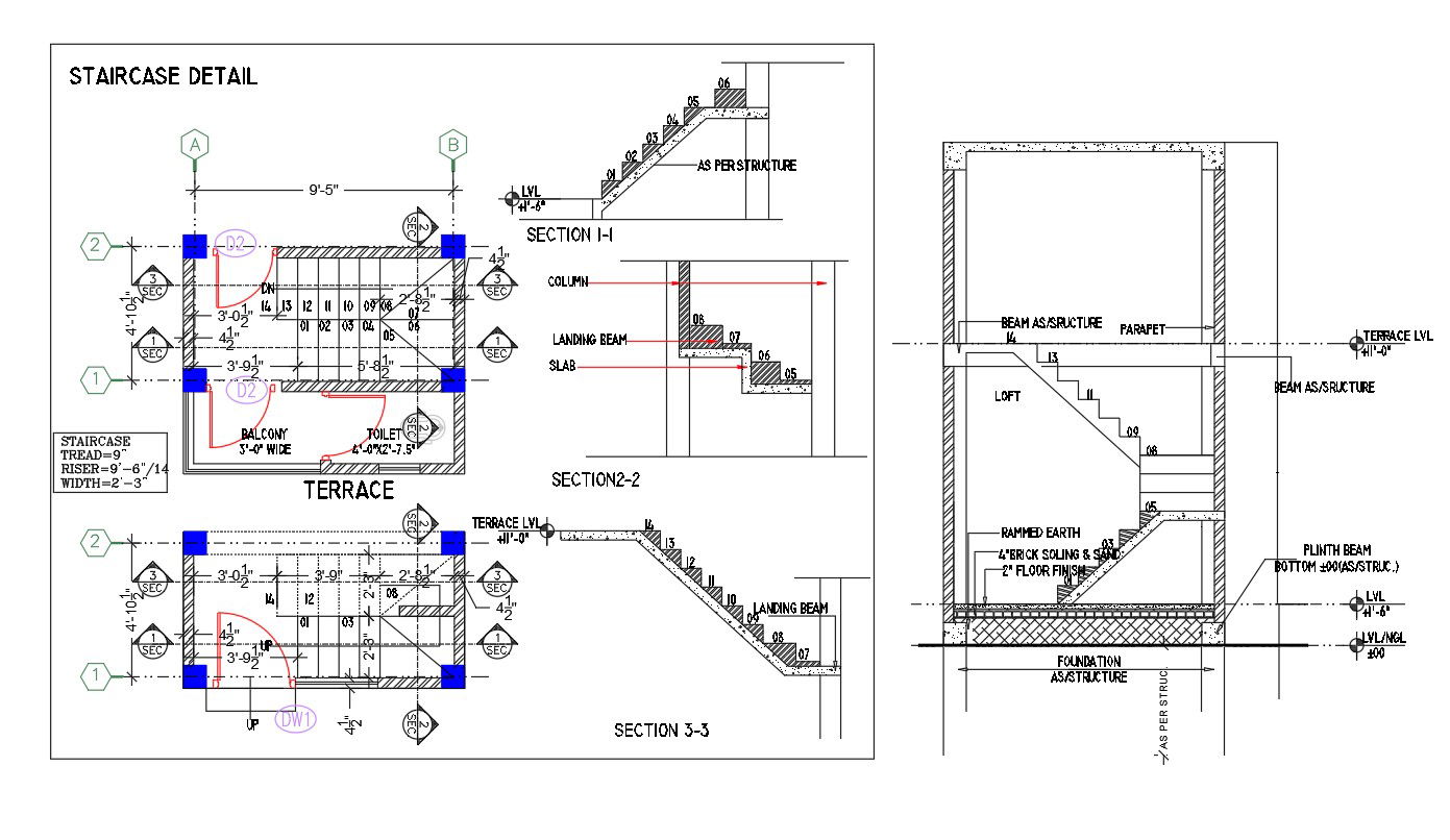
The staircase plan and section CAD drawing shows tread and riser 9"X9'-6" with total width size is 2'-3" survey and deliver a schematic showing the details. the depth position and the size of the underground structure column and landing beam detail in dwg file. Thank you for downloading the AutoCAD drawing file and other CAD program files from our website.
Uploaded by:

