Residential Plan And Building Drawing
Description
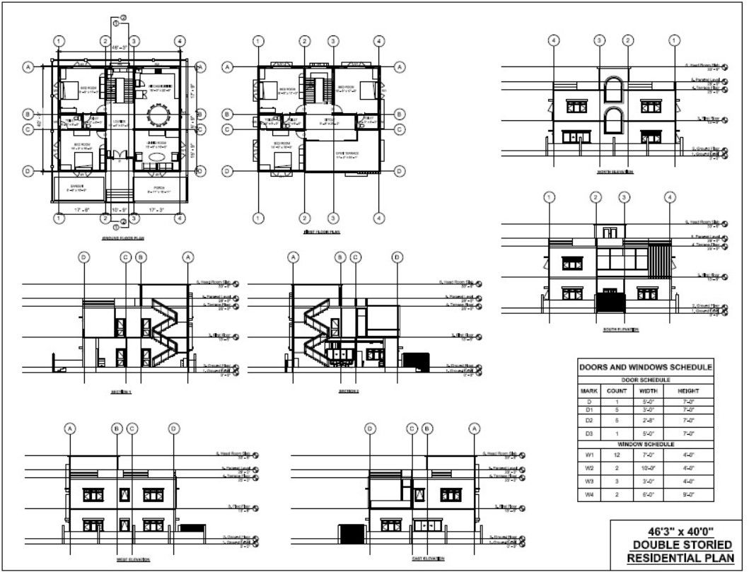
46'3" x 40' double storied residential plan consists of 2 bedroom in first floor and 3 bedrooms in second floor. All bedrooms are provided with attached bathrooms. The plan consists of garden area, porch and open terrace in first floor. 2 sectional elevation and elevation of all sides are also provided. Thank you for downloading pdf file.
Uploaded by:
Prasenjit
Chakraborty

