Mall With Theater CAD Drawing Download DWG File
Description
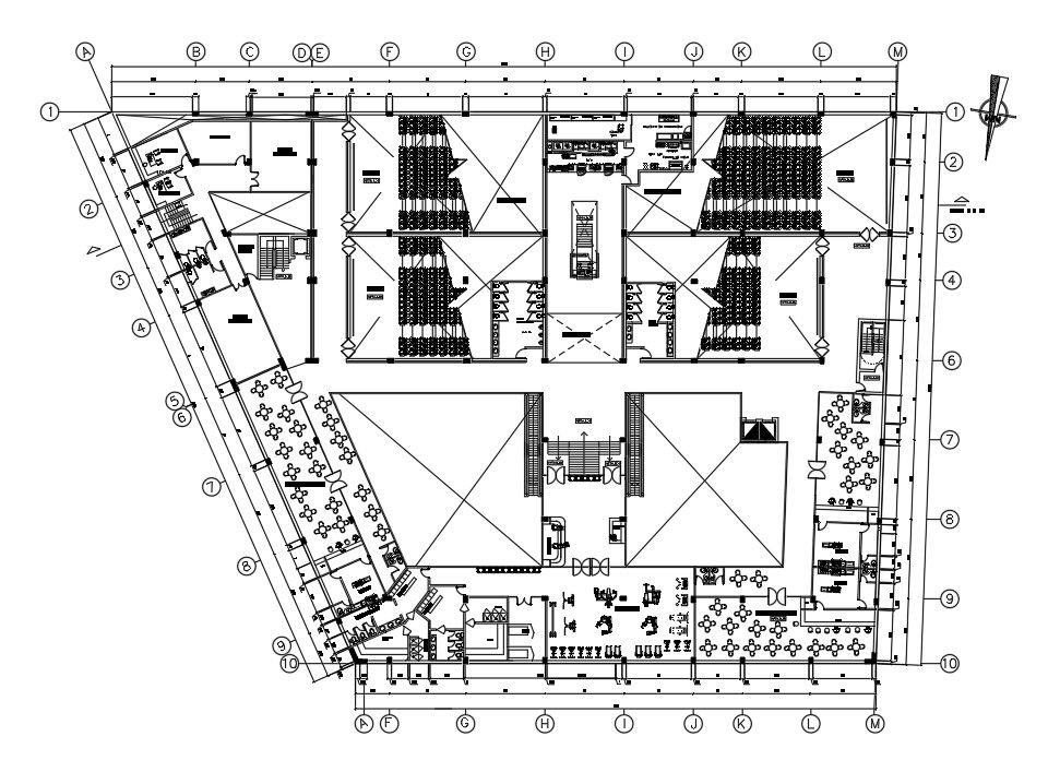
The architecture floor plan CAD drawing shows mall, multiplex theater, gym, restaurant, cafe, reception, toilet, escalators, and administration office with furniture and center line plan detail in dwg file. Thank you so much for downloading the DWG file from our website.
Uploaded by:

