60X30 Ft House Layout Plan AutoCAD Drawing DWG File
Description
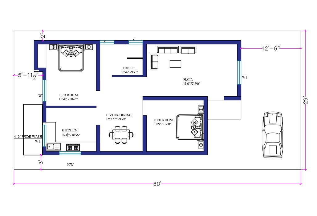
The architecture looking for home plans CAD drawing includes 60'X30' plot size townhouse which consists 2 bedrooms, living cum dining area, drawing room, kitchen, and car parking porch with all furniture layout and dimension detail in dwg file. download modern house plan design and use for your suitable land property. Thank you for downloading the AutoCAD drawing file and other CAD program files from our website.
Uploaded by:

