Free AutoCAD Line House Plan Drawing DWG File
Description
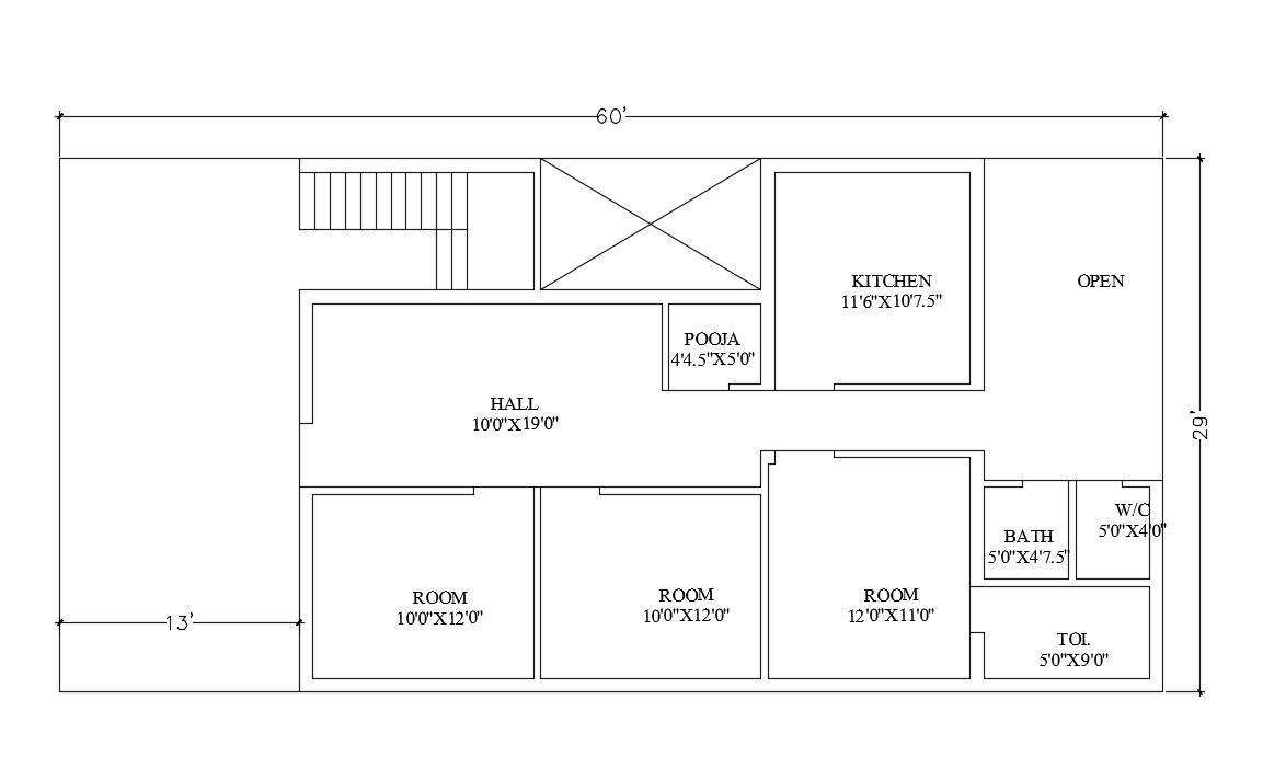
The residence Architecture house layout plan CAD drawing shows 60X30 feet plot size which consists d bedrooms, drawing room, kitchen, pooja room, out side staircase, and all dimensions with measurement detail in dwg file. Thank you for downloading the AutoCAD drawing file and other CAD program files from our website.
Uploaded by:

